Une Salle de Bains en Contrastes Graphiques
Le contexte
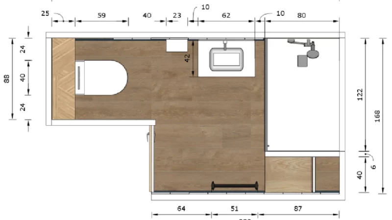
Un couple est désireux de créer un nouvel espace bains /WC, plus moderne, esthétique et fonctionnel: Souhaitant réunir ces 2 fonctions dans la même pièce, il faut optimiser l’utilisation de chaque centimètre carré, ajouter des rangements malins rendant ainsi la salle de bains plus pratique et agréable à utiliser.



Photos de l'existant





Voici les objectifs
En installant de nouveaux appareils sanitaires, des carrelages modernes et des solutions d’éclairage innovantes, cette transformation en fera un véritable havre de paix.
Côté décoration, le souhait des clients était d’allier un côté vintage avec du carrelage, pièce forte des matériaux et un côté design et graphique associé une couleur profonde: le bleu de Prusse.










